 
                                 
                                 
                                Sentralt beliggende leiligheter for langtidsleie med heis og balkong
Meld interesseHjemmelkompaniet er eiendomsselskapet i Brødrene Aursnes-konsernet. Selskapet har forretningskontor i Sykkylven, men investerer også i andre kommuner på Sunnmøre. Hjemmelkompaniet er både en eier og forvalter av konsernets eiendommer, som består av både leiligheter og næringslokaler.
Sykkylven kommune har inngått en avtale med Hjemmelkompaniet AS om tildeling for utleie av til sammen 6 flotte og moderne leiligheter i et leilighetsbygg oppført i 2021 i Kyrkjegata 38 (på Bankplassen) midt i Aure sentrum. Prosjektet er etablert som et samarbeid mellom Sykkylven kommune, Husbanken og Hjemmelkompaniet AS, der Sykkylven kommune står som tildeler av boligene i forhold som kommunen og Husbanken fastsetter for tildeling. Hjemmelkompaniet AS står som eier, utleier og forvalter av eiendommen. Hver enkelt leietaker inngår leiekontrakt med Hjemmelkompaniet AS.
Betingelser for tildeling av boligene finnes på Sykkylven kommune sin hjemmeside, eller på søknadsskjema for tildeling av kommunale boliger. Søknadsskjema til boligene fås ved å henvende seg til Hjemmelkompaniet AS.
Eiendommen
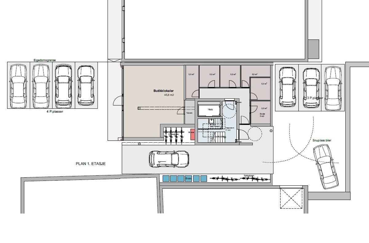
Det er 6 leiligheter fordelt på 2., 3. og 4. etasje og i første etasje er det forretningslokale, inngangsparti og 6 sportsboder, en til hver leilighet. Eiendommen er oppført med bærekonstruksjoner, etasjeskille, trapperom og heissjakt av betong. Det er brannsprinkling i fellesareal, sportsboder, leiligheter og forretningslokale. Fra inngangspartiet er det heis til hver etasje. Det er gang- og biladkomst fra Kyrkjevegen (Bankplassen) til eiendommens bakgård, der det er skjermet inngang til leilighetene og skjermet private parkeringsplasser.
Innhold
Hver leilighet inneholder gang, stue med kjøkken og utgang til egen privat balkong, dusj/wc/vaskerom, to soverom og bod, i tillegg til egen sportsbod i første etasje.
Parkering
Eiendommen har parkering på egen grunn. I bakgård er det private skjermet parkeringsplasser som er til leie.
Standard
Leilighetene tilfredsstiller gjeldende byggestandard på oppføringstidspunktet (TEK 17). Alle leilighetene har universell utforming (livsløpsstandard). Overflater er utført i lette og lyse farger. Felles søppelstasjon i gjennomgang til bakgård. Sensorstyrt utebelysning i første etasje. Felles sykkelparkering, der det også er utekran for vann.
Stue/kjøkken: Laminatparkett på gulv og lyse slette og malte veggplater. Himling av slettpussa og hvitmalt betong. Kjøkkeninnredning med slette fronter og laminat benkeplate. Det følger ikke med hvitevarer.
Dusj/WC/vaskerom: Keramiske fliser på gulv og baderomsplater på vegg. Nedforet og hvitmalt himling. Baderomsinnredning, dusj, vegghengt WC og opplegg for vaskemaskin og tørketrommel.
Soverom, gang og bod: Laminatparkett på gulv og lyse slette malte veggplater. Himling av slettpussa og hvitmalt betong, som dels er nedforet.
Terrasse: Egen privat terrasse med utgang fra stue. Det er tredekke på gulv og glassrekkverk på øverste del av rekkverk. Utelys og stikkontakt.
Sportsboder: Gulv av betong og vegger av dels betong og ubehandlet trepanel kledd på en side av delevegger.
Trapperom: Trapperom og trapper i synlig betong i golv, vegger og himling. Sensorstyrt belysning. I tillegg nødlys og ledelys.
Balansert ventilasjon: I hver leilighet er det eget ventilasjonsanlegg med varmegjenvinner. Avtrekk fra bad og kjøkken, og innblåsing i stue, gang, bod og soverom.
Oppvarming: Varmekabler i dusj/WC/vaskerom. 1000W panelovn i stue og 500W panelovn på hvert soverom.
 
                                     
                                     
                                     
                     
                    Sentralt beliggende leiligheter for langtidsleie med heis og balkong
Meld interesseHjemmelkompaniet er eiendomsselskapet i Brødrene Aursnes-konsernet. Selskapet har forretningskontor i Sykkylven, men investerer også i andre kommuner på Sunnmøre. Hjemmelkompaniet er både en eier og forvalter av konsernets eiendommer, som består av både leiligheter og næringslokaler.

 
                 
                                 
                                 
                                 
                                 
                                 
                                 
                                 
                                 
                                